Úvodní stránka » Rodinný dům 1

Rodinný dům 1

Nabízíme Vám výstavbu pasivního rodinného domu 4+kk v obci Rtyně nad Bílinou cca 11 km od centra města Teplice v Čechách a 15 km od centra města Ústí nad Labem.  Dům je konstruovaný jako zděný ze sedlovou střechou umístěný na pozemku obdélníkového tvaru, výměry 904 m2, včetně příjezdové cesty o výměře 1/2 270 m2

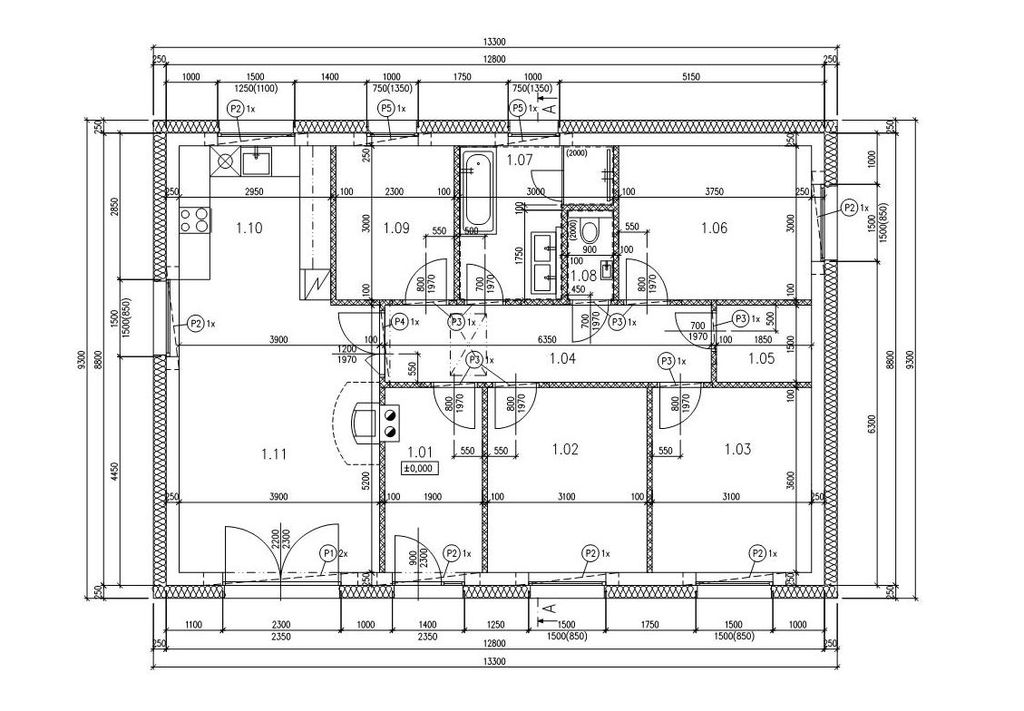
Dispoziční řešení

Dispozice domů je 4 + kk - zádveří, chodba,  WC, technická místnost, obytná místnost s kuchyňským koutem, koupelna a tři pokoje.

Užitná plocha domu č. 1 – 97,8 m2.

Občanská vybavenost

V místě je k dispozici veškerá občanská vybavenost (úřady, obchody, MŠ, ZŠ, sportoviště, vlakové i autobusové spojení, výborná dostupnost na dálnici D8).

Ceny, výměry pozemků, financování

Rodinné domy lze financovat hypotékou či úvěrem ze stavebního spoření. Srovnání nabídek bank a poradenství bezplatně zajistíme.

  • dům č. 1 – užitná plocha 97,8 m2, plocha pozemku 904 m2, cena 4 649 265.00,- Kč, včetně DPH

Program nová zelená úsporám

  • na výstavbu nových rodinných domů s velmi nízkou energetickou náročností se vztahuje podpora v oblasti B. Podle dosažených energetických parametrů budovy se oblast podpory B dělí na dvě podoblasti podpory:B.1 a B.2
  • nabízené rodinné domy spadají do podpory podoblasti B.1 , kde je maximální výše dotace až 335 000,- Kč/dům
  • vyřízení žádosti o udělení dotace nová zelená úsporám samozřejmě zajistíme během výstavby rodinných domů.



Fotografie