LVJ group invest s.r.o. - výstavba nízkoenergetických a pasivních rodinných domů na klíč
  • O nás
  • Výstavba pasivních domů
    • O pasivních domech
    • Co je v ceně domu
  • Nabídka projektů
    • Rodinný dům 1
    • Rodinný dům 2
  • Kontakty
  • Napište nám
Úvodní stránka » Fotogalerie » foto dům č. 2

foto dům č. 2

Výstavba nízkoenergetických a pasivních domů

Exkluzivně nabízíme výstavbu dvou rodinných domů 4+kk v obci Rtyně nad Bílinou cca 11 km od centra města Teplic e v Čechách a 15 km od centra města Ústí nad Labem.  Domy jsou zděné ze sedlovou střechou umístěné na pozemcích obdélníkového tvaru, výměry 942 m2 , 904 m2, včetně příjezdové cesty o výměře 270 m2 Domy mají velmi pěknou dispozici, celková užitná plocha 97,8 m2.

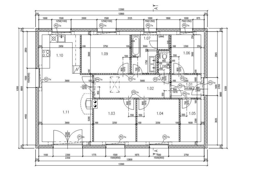
Rodinné domy Rtyně nad Bílinou - dispoziční řešení

Dispozice domů je 4 + kk - zádveří, chodba,  WC, technická místnost, obytná místnost s kuchyňským koutem, koupelna a tři pokoje.

Užitná plocha domu č.2 – 97,8 m2.

Rtyně nad Bílinou - vybavenost

V místě je k dispozici veškerá občanská vybavenost (úřady, obchody, MŠ, ZŠ, sportoviště, vlakové i autobusové spojení, výborná dostupnost na dálnici D8).

Domy Rtyně nad Bílinou - ceny, výměry pozemků, financování

Rodinné domy lze financovat hypotékou či úvěrem ze stavebního spoření. Srovnání nabídek bank a poradenství bezplatně zajistíme včetně potřebného odhadu.

  • dům č. 2 – užitná plocha 97,8 m2, plocha pozemku 904 m2, cena 3.918.000 Kč, včetně DPH

RT - C - D.jpg
RT - C 02.jpg
RT - D 02.jpg
RT - D 01.jpg
RT - D 03.jpg
RT - D 04.jpg
D.1.3 Půdorys 1.NP_1.jpg
C.1 Kopie katastrální mapy_1.jpg
C.2 Koordinační situace_1.jpg
mapy1.png
mapy.png
INT A02.jpg
INT A01.jpg
INT A03.jpg
INT K02.jpg
zpět

Oblíbené odkazy

  • BAUMATERM stavební s.r.o.

Kontakt

  • LVJ group invest s.r.o.
    Bělehradská 858/23
    120 00 Praha - Vinohrady
  • 04636511
  • Jednatelé společnosti:
    +420 776 17 87 17 - Vladislav Vrablic
    +420 724 496 787 - Jiří Veselý
  • info@lvj-group.cz
  • O nás
  • Výstavba pasivních domů
  • Nabídka projektů
  • Kontakty
  • Napište nám
Copyright © 2025 LVJ group invest s.r.o. | - webové stránky s AI, doména a webhosting | Mapa webu

Využíváme soubory cookies

Kliknutím na Přijmout cookies dáváte souhlas s uložením vybraných cookies (nutné, preferenční, výkonnostní, marketingové). Cookies používáme pro lepší fungování našeho webu, měření jeho výkonnosti a cílení a personalizaci reklam. To jaké cookies budou uloženy, můžete svobodně rozhodnout pod tlačítkem Upravit nastavení.
Prohlášení o cookies.

Využíváme soubory cookies a další technologie pro lepší uživatelský zážitek na webu. Následující kategorie můžete povolit či zakázat a svůj výběr uložit.

Tyto cookies jsou nezbytné pro zajištění základní funkčnosti webových stránek.

Preferenční cookies slouží pro zapamatování nastavení vašich preferencí pro příští návštěvu.

Výkonnostní cookies monitorují výkon celého webu.

Marketingové a reklamní cookies se využívají k měření a analýze webu.